Wir kombinieren fundiertes Ingenieurwissen mit praxisnaher Baustellenerfahrung. Sowohl unsere Tragwerksplanung als auch unsere Energieberatung überzeugen durch Wirtschaftlichkeit, Nachhaltigkeit und Baubarkeit – gleichermaßen für kleine und große Projekte. Lassen Sie uns gemeinsam Ihr Bauvorhaben erfolgreich umsetzen!
Was uns auszeichnet
Tragwerksplanung neu gedacht
Wir haben einen ganzheitlichen Blick auf Ihr Bauvorhaben: Wir kennen die kritischen Punkte in der Planung und die Probleme auf der Baustelle. Aufgrund unserer Baustellennähe erkennen und lösen wir diese frühzeitig. Wir denken weiter, hinterfragen uns stetig und prüfen Alternativen. Wir sind engagiert, planen partnerschaftlich und entwickeln im interdisziplinären Team die optimale Lösung für Ihr Projekt.
Ausgeklügelte Tragwerksplanung
Wir hinterfragen und optimieren Tragsysteme, Materialien und Dimensionen – immer mit Blick auf Wirtschaftlichkeit, Ressourcenschonung und Nachhaltigkeit.
Neue Lösungsansätze
Technisch versiert entwickeln wir neue Konstruktionsweisen für Ihr Projekt / Unternehmen – zum Ziel der Wirtschaftlichkeit oder zur Ermöglichung eines Wettbewerbsvorteils.
Lösungsorientiert
Wir unterstützen Sie kurzfristig und unkompliziert unter Berücksichtigung von Bauabläufen und Belangen der Baustelle – die Grundlage für einen reibungslosen Bauablauf.
Nachhaltigkeit im Fokus
Bei unserer Planung haben wir die CO₂- und Materialreduktion unter Berücksichtigung der Wirtschaftlichkeit stets im Blick.
Expertise
Wir lösen und bemessen anspruchsvolle Konstruktionen und Knotenpunkte und unterstützen unsere Kunden bei sämtlichen Sonderthemen der Tragwerksplanung.
Movtivation
Wir sind begeisterte Ingenieure, die die Bauwelt aktiv voranbringen und verbessern möchten. Wir verstehen uns Ingenieure als Problemlöser und Ideenentwickler und haben Freude daran die bestmöglichen Lösungen für unsere Kunden zu entwickeln.
Leistungen
Unser Leistungsspektrum
Neubau
- Tragwerksplanung aller Leistungsphasen
- Entwicklung von wirtschaftlichen und ressourcenschonenden Tragsystemen
- Frühzeitige Berücksichtigung der Baustellenbelange und Bauabläufe – für eine kostenoptimierte Planung und einen reibungslosen Bauablauf
- Gegenüberstellung verschiedener Tragwerksvarianten und Erarbeitung von Entscheidungsvorlagen
- Lösung komplizierter Knotenpunkte und Details
- Schnittstelle und Koordination zwischen Planung und Rohbau
- Energieberatung
Bestandsbau
- Tragwerksplanung aller Leistungsphasen
- Beurteilung und Nachrechnung der vorhandenen Tragstruktur
- Erarbeitung von Ertüchtigungskonzepten inkl. Überprüfung der Baubarkeit und Kostenoptimierung
- Schnittstelle und Koordination zwischen Planung und Rohbau
- Unser Grundsatz im Bestandsbau: viel planen, um wenig zu bauen ist die Grundvoraussetzung für die Kostenoptimierung und Ressourcenschonung im Bestandsbau
- Energieberatung
Beratung, Optimierung, Sondervorschläge
- Technische Beratung bei anspruchsvollen Baukonstruktionen
- Überprüfung und Optimierung vorgegebener Tragsysteme hinsichtlich Wirtschaftlichkeit, Ressourcen und CO2
- Überprüfung der Baubarkeit und Erarbeitung effizienter Bauabläufe
- Akquiseunterstützung für Bauunternehmen: wir überprüfen die vorliegenden Tragsysteme und ermitteln Optimierungspotential
- Erarbeitung von Sondervorschlägen zur Kostenreduktion und Optimierung des Bauablaufs
- Umplanung von Ortbetonbauwerken in Fertigteilkonstruktionen
Entwicklungen
- Technische Unterstützung bei Neuentwicklungen und Sonderkonstruktionen – vom Brainstorming bis zur ausgearbeiteten Lösung
- Entwicklung von Fertigteilkonstruktionen mit Detailausbildungen – im Geschossbau wie im Wohnungsbau
- Betreuung bei der Erwirkung von ZiEs
stets dabei
- Überprüfung der Baubarkeit und Erarbeitung effizienter Bauabläufe
- Erstellung von Planungsterminplänen bei größeren Bauvorhaben
- Baustellennähe
- Überschlägige Ermittlung des CO2-Äquivalents des Tragwerks und Einordnung in die Treibhausgasrichtlinie des DAfStb
Leistungen
Unser Leistungsspektrum
Neu- & Bestandsbau
Entwicklungen, Optimierungen, Sondervorschläge
Energieberatung
Element #1
Element #2
Element #3
Projekte
Unsere Projekte
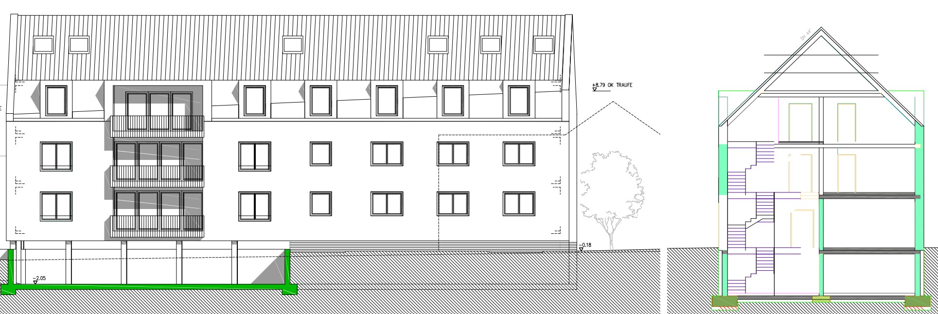
Neubau einer Wohnbebauung
München
Neubau einer Wohnbebauung bestehend aus einer Tiefgarage, einer Marktsituation im EG, Büro und Wohnen im OG1, sowie Wohnen im OG2-OG7 (L/B/H = 63m/38m/10m) mit insgesamt 120 Wohneinheiten und etwa 13.000m² BGF. Ausführungszeitraum: 2026-2027
© Bilder: Brückner Architekten München
Bearbeiteter Leistungsumfang
Tragwerksplanung LP1-5:
LP1: Grundlagenermittlung
LP2: Vorplanung
LP3: Entwurf
LP4: Genehmigungsplanung, Standsicherheitsnachweise
LP5: Ausführungsplanung (Schal- & Bewehrungspläne, Fertigteilplanung)
MFH Kernerstrasse
Schwaigern
Bau eines Mehrfamilienhauses mit 10 Wohneinheiten. Insgesamt 2 Gebäude die auf einer gemeinsamen Tiefgarage, teils aneinander angrenzen, teils über Dachterrassen bzw. Fluchtbalkone miteinander verbunden sind. Gesamtabmessung Gebäudekomplexe 42,7m x 10,5m. Ausführzeitraum: 2026
Bearbeiteter Leistungsumfang
Tragwerksplanung LP 3-5:
LP3: Entwurf
LP4: Genehmigungsplanung, Standsicherheitsnachweise
LP5: Ausführungsplanung (Schal- & Bewehrungspläne)
Neubau von 2 Gebäuden auf Tiefgarage
Pfinztal
In Pfinztal Söllingen werden zwei Gebäude auf einer gemeinsamen Tiefgarage errichtet: Ein Wohnhaus mit 2 Wohneinheiten und Laden im EG sowie ein Wohnhaus mit 9 Wohneinheiten. Die Gebäude werden in Massivbauweise errichtet.
Eine Besonderheit ist die Grenzbebauung, welche einen Träger-Bohl-Verbau sowie die Unterfangung von nicht unterkellerten Nachbargebäuden erfordert. Aufgrund der schlechten Baugrundverhältnisse wurden im Bereich der TG-Stützen Magerbetonstreifen unterhalb der Gründungssohle ausgebildet, die bis auf die tragfähigere Bodenschicht führen. Diese Maßnahme kostet im vorliegenden Fall nur etwa nur 30% ggü. einer Brunnenringgründung mit ähnlicher Wirkung.
Bearbeiteter Leistungsumfang
Tragwerksplanung LP3-5:
– LP3: Entwurf
– LP4: Genehmigungsplanung, Standsicherheitsnachweise
– LP5: Ausführungsplanung (Schal- & Bewehrungspläne)
Neubau von 3 Mehrfamilienhäusern
Ofterdingen
Neubau von 3 Mehrfamilienhäusern mit insgesamt 27 Wohneinheiten. Das Bauvorhaben befindet sich in der Erdbebenzone 3. Die Kellergeschosse wurden als Weiße Wanne ausgebildet – angewendet wurde der Entwurfsgrundsatz C der WU-Richtlinie. Die Aussteifung des Gebäudes erfolgt über die Mauerwerkswände sowie den Aufzugskern. Ausführungszeitraum: 2025
Bearbeiteter Leistungsumfang
Tragwerksplanung LP3-5:
– LP3: Entwurf
– LP4: Genehmigungsplanung, Standsicherheitsnachweise
– LP5: Ausführungsplanung (Schal- & Bewehrungspläne)
– WU-Konzept für Weiße Wanne
Umbau und Neubau
Heidelberg
Neubau von 2 Mehrfamilienhäusern mit 23 Wohneinheiten auf gemeinsamer Tiefgarage und Umbau eines bestehenden Mehrfamilienhauses mit 10 Wohneinheiten inkl. Planung von Ergänzungsbauwerken.
Bearbeiteter Leistungsumfang
Tragwerksplanung LP3+4:
– LP3: Entwurf
– LP4: Genehmigungsplanung, Standsicherheitsnachweise
Hirschareal Weisenbach
Weisenbach
Neubau von 3 Mehrfamilienhäusern mit insgesamt 26 Wohneinheiten auf gemeinsamer Tiefgarage in Weisenbach. Ausführungszeitraum: 2025
Bearbeiteter Leistungsumfang
Tragwerksplanung LP3-5:
– LP3: Entwurf
– LP4: Genehmigungsplanung, Standsicherheitsnachweise
– LP5: Ausführungsplanung (Schal- & Bewehrungspläne)
– WU-Konzept für Weiße Wanne und Weiße Decke
Pflegeheim "Haus am Wiesengrund"
Kraichtal
Neubau eines 3-geschossigen Erweiterungsbaus des Pflegeheims „Haus am Wiesengrund“ mit 49 Zimmern, ca. 50m x 25m, inkl. Fußgängerbrücke.
Bearbeiteter Leistungsumfang
Tragwerksplanung LP 3-5: Entwurf, Statik, Schalplanung, Bewehrungsplanung; Entwurf und statische Berechnung einer Fußgängerbrücke (L = 9,2m). (BLC)
Neubau von 8 Mehrfamilienhäusern
Lauffen am Neckar
Neubau von 8 Mehrfamilienhäusern mit insgesamt 78 Wohneinheiten auf einer gemeinsamen Tiefgarage. Ausführungszeitraum: 2025-2026
Bearbeiteter Leistungsumfang
Tragwerksplanung LP3-5:
– LP3: Entwurf
– LP4: Genehmigungsplanung, Standsicherheitsnachweise
– LP5: Ausführungsplanung (Schal- & Bewehrungspläne)

Mehrfamilienhaus mit 10 Wohneinheiten und Garagen
Hambrücken
In Hambrücken wird ein Mehrfamilienhaus mit 10 Wohneinheiten und zusätzlicher Garagenanlage geplant. Außenabmessungen: ca. 23x19m; Geschosse: UG, EG, OG, DG; Massivbau mit Satteldach. Ausführungszeitraum: 2024
Bearbeiteter Leistungsumfang
Tragwerksplanung LP3-5:
– LP3: Entwurf
– LP4: Genehmigungsplanung, Standsicherheitsnachweise
– LP5: Ausführungsplanung (Schal- & Bewehrungspläne)
(BLC)


Mehrfamilienhaus Gemmingen
Gemmingen
Neubau eines Mehrfamilienhauses mit 8 Wohneinheiten in Gemmingen. Ausführungszeitraum: 2023.
Bearbeiteter Leistungsumfang
Tragwerksplanung LP3-5:
– LP3: Entwurf
– LP4: Genehmigungsplanung, Standsicherheitsnachweise
– LP5: Ausführungsplanung (Schal- & Bewehrungspläne)
(BLC)
Neubau Werkstatt- und Lagerhalle mit Bürogebäude und Tiefgarage
Fellbach
Neubau einer Werkstatt- und Lagerhalle (L/B/H = 48m/42m/10m) als Fertigteilkonstruktion mit angrenzendem Bürogebäude(L/B/H = 27m/11,5m/12,2m) und Tiefgarage in Fellbach. Ausführungszeitraum: 2025
Bearbeiteter Leistungsumfang
Tragwerksplanung LP3-5:
– LP3: Entwurf
– LP4: Genehmigungsplanung, Standsicherheitsnachweise
– LP5: Ausführungsplanung (Schal- & Bewehrungspläne)
Bürogebäude mit Loftwohnungen
Kronau
Neubau eines 4-geschossigen Bürogebäudes (LxBxH = 45 x 20 x 15m) bestehend aus Büroräumen, Lagerflächen, einer Mehrzweckhalle sowie drei Loftwohnungen im obersten Geschoss. Bauherr: MP-SOFT-4-U GmbH / Hubwerk02
Bearbeiteter Leistungsumfang
Tragwerksplanung LP 3-5: Entwurf, Statik, Schalplanung, Bewehrungsplanung
WU-Konzept Dachdecke (nicht umgesetzt). (BLC)
FRA 18-22
Frankfurt a. Main
Bauen im Bestand: Umbau des ehemaligen Versandzentrums von Neckermann in ein Serverzentrum mit Büroräumen. Gebäudeabmessungen LxBxH = 315m x 65m x 28m.
Bearbeiteter Leistungsumfang
Tagwerksplanung LPh. 4+5 des Bestands sowie Ausarbeitung und Umsetzung von Sondervorschlägen zur Optimierung des Tragwerks; Erstellung und Ausarbeitung eines Abbruchkonzepts; Fertigung der zugehörigen Planunterlagen. (BLC)
Neubau Gewerbegebäude
Sauerlach
Neubau einer zweigeschossigen Gewerbehalle mit integriertem Bürogebäude als Fertigteilkonstruktion unter Berücksichtigung einer späteren Gebäudeerweiterung. Gebäudeabmessungen LxBxH = 48m x 22m x 13m. Ausführungszeitraum: 2023-2024
Bearbeiteter Leistungsumfang
Tragwerksplanung LP 4+5 inkl. Transport- und Montagezustände, Fertigteilelementplanung, Montagekonzept. (BLC)
Champignonproduktion
Schwaigern
Neubau einer Champignonproduktion (ca. 110m x 140m) bestehend aus einer Produktionshalle, einem Versorgungstrakt sowie einer Verpackungshalle. Nach Fertigstellung werden hier 45 to Champignons pro Woche produziert.
Bearbeiteter Leistungsumfang
Umplanung der Stahlbetonbrandwände (H = 11m) samt Fundamenten inkl. Schal- und Bewehrungsplanung. (BLC)
Neubau der Lärmschutzwand 171 - Abschnitt Düsseldorf
Düsseldorf
Im Rahmen des Infrastrukturprojektes RRX wird entlang der Strecke 2650 Köln-Deutz in Düsseldorf eine etwa 900m lange Lärmschutzwand im Auftrag der DB InfraGo AG erstellt. Die Höhe der Lärmschutzwand beträgt 6m ü. Schienenoberkante, sodass für die Planung eine UiG (Unternehmensinterne Genehmigung) erforderlich war.
Durch unsere Optimierung der in einem Teilbereich erforderlichen Flachgründungen können die Erdarbeiten (Aushub + Verfüllung) um 60% reduziert werden (von 3.080 m³ auf 1.224 m³). Gleichzeitig sparen wir 90% des Betons, indem wir die Streifenfundamentgründung in Einzelfundamente (Köcher-Fertigteile) auflösen.
Bearbeiteter Leistungsumfang
Tragwerksplanung LP4+5:
– LP4: Genehmigungsplanung, Standsicherheitsnachweise
– LP5: Ausführungsplanung (Abwicklungspläne, Regeldetails, Erdungsplanung, Flucht- und Beschilderungsplanung, Fertigteilplanung, Stahlbauplanung)
Neubau einer Multifunktionswand auf der Elbebrücke Wittenberge (A14)
Wittenberge
Neubau von 2 um 10° geneigten, 4m hohen Multifunktionswänden auf der Elbebrücke Wittenberge. Die Wand dient dem Lärmschutz sowie dem Irritationsschutz für Fledermäuse und Vögel. Die Gesamtlänge beträgt über 2,2 km wird mit integriertem Handlauf und eingelegtem Drahtseil ausgebildet.
Besonders aufwändig ist die Konstruktion des Dilatationsstoßes im Bereich der Übergangskonstruktionen. Ausführzeitraum: 2025-2026
Bearbeiteter Leistungsumfang
Tragwerksplanung LP4+5:
– LP4: Ergänzung + Umplanung f. Optimierung
– LP5: Ausführungsplanung (Schal- & Bewehrungspläne)
Lärmschutzwand entlang der Bahnschienen in Koblenz
Koblenz
Neubau von 11 Lärmschutzwänden mit einer Gesamtlänge von 2.600m. Bauweise: Stahlpfosten, Stahlbetonsockel, Aluminiumkassetten, Rammrohrgründung. Inklusive 2 Stahltorsionsbalken und 2 Stahlbetontorsionsbalken.
Bearbeiteter Leistungsumfang
Tragwerksplanung LP3-5:
– LP3: Entwurf
– LP4: Genehmigungsplanung, Standsicherheitsnachweise
– LP5: Ausführungsplanung (Schal- & Bewehrungspläne)
(BLC)
Neubau Fledermausüberflughilfe Rosenheim
Rosenheim
Neubau von 2 Lärmschutzwänden/ Fledermausüberflughilfen über ein Brückenbauwerk bei Rosenheim.
Ausführzeitraum: 2025
Bearbeiteter Leistungsumfang
Tragwerksplanung LP4+5:
– LP4: Genehmigungsplanung, Standsicherheitsnachweise
– LP5: Ausführungsplanung (Schal- & Bewehrungspläne)
Fertigteilwerk Weber Betonwerk
verschiedene Standorte
Für das Fertigteilwerk Weber Betonwerk führen wir regelmäßig Umplanungen von Ortbeton zu Fertigteilbau und Optimierungen durch.
- Umplanung von Ortbeton zu Fertigteilbau inkl. Ergänzungsstatik + Anschlussausbildung
- Bemessung von Vollfertigteilen wie Massivwände, Massivdecken, Balkonplatten, Treppenläufe
- Optimierung von bestehenden Tragsystemen bspw. durch Reduzierung von Wandstärken + Bewehrungsgehalten, Optimierung von Details
- Reduzierung Deckengewicht + Bewehrung durch Einsatz von Leichtbetondecken
Bearbeiteter Leistungsumfang
Tragwerksplanung LP4:
- Ergänzungsstatik: Umbemessung der Wände in unbewehrte Fertigteilwände
- Zusammenstellen der Ausführungsangaben für unbewehrte Wände
Geschäftführung
Sarah-Maria Haug, M.Sc.
Seit 10/2024
Geschäftsführerin der Haug Plan GmbH
2024
Weiterbildung zur Energieeffizienzexpertin (dena)
01/2022 – 12/2024
Gesellschafterin der Bachmann Liebig Consulting + Engineering Beratende Ingenieure PartGmbB
2016 – 2021
Ed. Züblin AG, Stuttgart
Technisches Büro konstruktiver Ingenieurbau
Projektleiterin & Projektingenieurin
2011 – 2016
B.Sc. & M.Sc. Bauingenieurwesen konstruktiver Ingenieurbau, Universität Stuttgart
Unser Team
Projektingenieurin Tragwerksplanung
Projektingenieurin Tragwerksplanung
Projektingenieur Tragwerksplanung
Projektingenieur Tragwerksplanung
Buchhaltung
Teamassistenz
Werkstudent
Werkstudentin
Werkstudent
Ob Neubau oder Bestand – wir freuen uns darauf Sie bei Ihren Projekten zu unterstützen. Kontaktieren Sie uns für ein persönliches Gespräch.
Haug Plan GmbH
Tragwerksplanung & Energieberatung
Stadionstraße 4
70771 Echterdingen
- info@haug-plan.de
- +49 (0) 175 6653 260

















































